Catalog Level
Items (Cataloging Focus)

Repository Name
Fondazione Achille Marazza (Borgomanero, Italy)

Current Repository/Geographic Location
Borgomanero

Administrative Unit
Stefano Molli Archive

Group/Item ID
SM159a

Big Folder Name
Not in folder

Small Folder Name
Not in folder

Sub-small Folder Name
Not in folder

Alternate ID
SM159a003_31

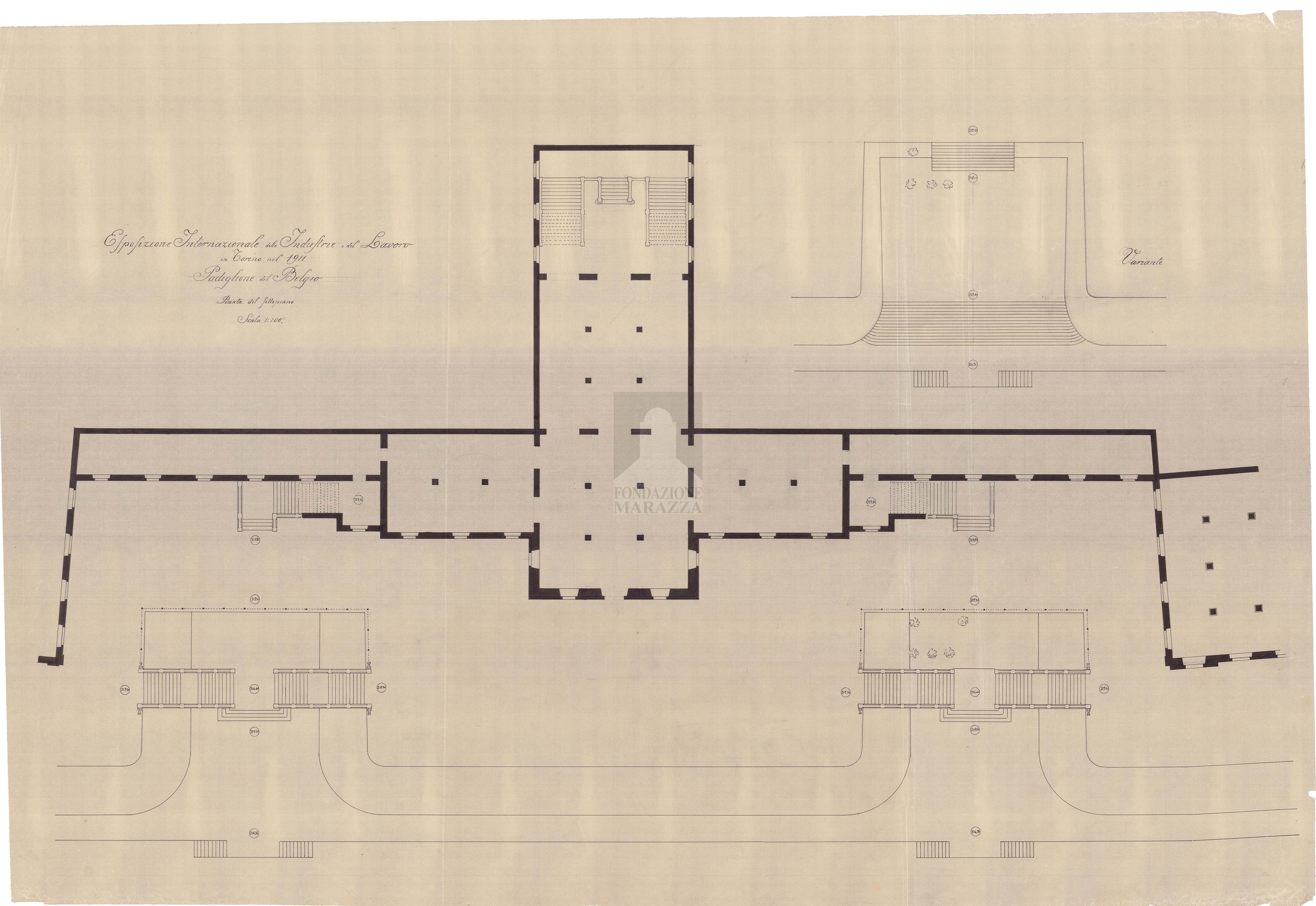
Descriptive Title
Plan of the Pavilion of Belgium 1:100 - Subfloor Plan

Document Type
Technical Drawings

Responsibility Description
Attributed to Stefano Molli

Related Protagonists

Related Built Environment Objects

Method/View (Broad)
Plans (Orthographic Projections)

Dimension Description
125x87 cm.

Inscription Description
"Esposizione Internazionale delle Industrie e del Lavoro in Torino nel 1911" (front with ink).
"Padiglione del Belgio" (front with ink).
"Pianta del sottopiano" (front with ink).
"Scala 1:100" (front with ink).
Elevation levels (front with ink).

Dimensioning
1:100